1376 Eiffel DrivePlumas Lake, CA 95961


Mortgage Calculator
Monthly Payment (Est.)
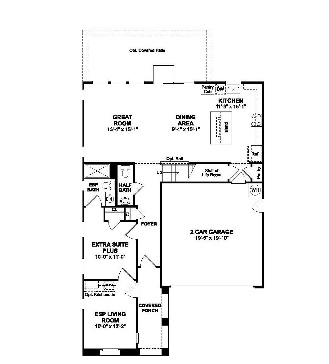
$2,674Experience elevated living at Luna Bella, ideally located for easy access to Sacramento, Lake Tahoe, the San Francisco Bay Area, and the picturesque Feather River. With nearby parks and golf courses, this community offers the perfect blend of outdoor beauty and daily convenience. This thoughtfully crafted Seine plan showcases a spacious great room that flows effortlessly into the kitchen and an expansive covered patio, ideal for entertaining or unwinding at home. The modern kitchen makes a striking impression with Stone Grey cabinetry, Arctic White quartz countertops, a large island accented by designer pendant lighting, and a generous walk-in pantry for seamless organization. An exclusive Extra Suite Plus with private entrance, bedroom, and sitting area provides exceptional flexibility for multi-generational living or extended-stay guests. Upstairs, a versatile loft offers space for a home office, media lounge, or study area. The serene primary suite features dual vanities and a sleek walk-in shower for a spa-like retreat. Three additional bedrooms and a convenient upstairs laundry room complete this beautifully designed home, where comfort and sophistication come together effortlessly. *Price subject to change.
| 42 minutes ago | Listing updated with changes from the MLS® | |
| yesterday | Listing first seen on site |
All measurements and all calculations of the area are approximate. Information provided by Seller/Other sources, not verified by Broker. All interested persons should independently verify the accuracy of information. Provided properties may or may not be listed by the office/agent presenting the information. Data maintained by MetroList® may not reflect all real estate activity in the market. All real estate content on this site is subject to the Federal Fair Housing Act of 1968, as amended, which makes it illegal to advertise any preference, limitation or discrimination because of race, color, religion, sex, handicap, family status or national origin or an intention to make any such preference, limitation or discrimination. Terms of Use
Last checked 2026-02-20 05:08 PM PST




Did you know? You can invite friends and family to your search. They can join your search, rate and discuss listings with you.